Public hearing set for Carlsborg transfer station, recycling center
Published 1:30 am Wednesday, January 26, 2022
An online public hearing regarding a proposed solid waste transfer station and recycling center on Carlsborg Road is set for next week.
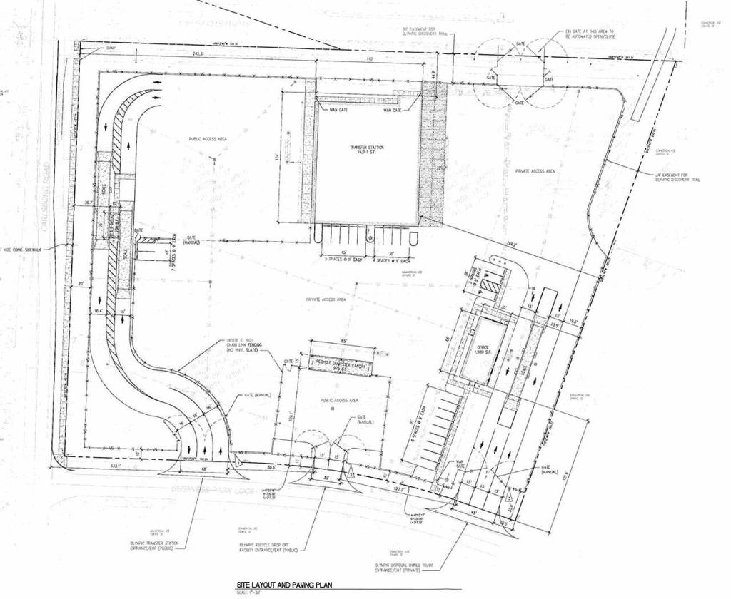
Olympic Disposal in mid-November filed a conditional use permit with Clallam County’s Department of Community Development to place a municipal solid waste transfer station, commercial recycling center and consolidation bay and offices on a currently vacant 5.46-acre site at the northeast corner of Carlsborg Road and the Carlsborg Business Loop.
The hearing is set for 1 p.m. Thursday, Feb. 3, on Zoom. Attend the meeting by going to tinyurl.com/CarlsborgTransfer (meeting ID 884 3742 7179, passcode 12345) or attend by phone by calling 253-215-8782.
The Olympic Disposal Transfer Station would be about 14,000 square feet and 36 feet tall, with an 831-square-foot recycling center less than 20 feet tall.
Also in the plans are a 2,000-square-foot office and a 260-square-foot pay booth. Surrounding the site will be an 8-foot-tall sight-obscuring fence along with landscape buffers.
According to representatives of Sitts & Hill, a Tacoma-based engineering firm, about 180-205 of the estimated 513 vehicles entering the facility each day will be heavy vehicles and/or trucks. Those traffic estimates are based on traffic patterns observed at the Grays Harbor Transfer Facility in Montesano, the representatives state.
The transfer station is expected to process about 120 tons per day as operations begin.
The proposed transfer station and recycling center would be open from 7 a.m.- 7 p.m. daily, except holidays, for disposal of solid waste and recycling, company representatives stated.
