Olympic Disposal proposing transfer station, recycling center in Carlsborg
Published 1:30 am Wednesday, December 1, 2021
A proposal to build a transfer station and recycling center in Carlsborg is now on the desks of county planners.
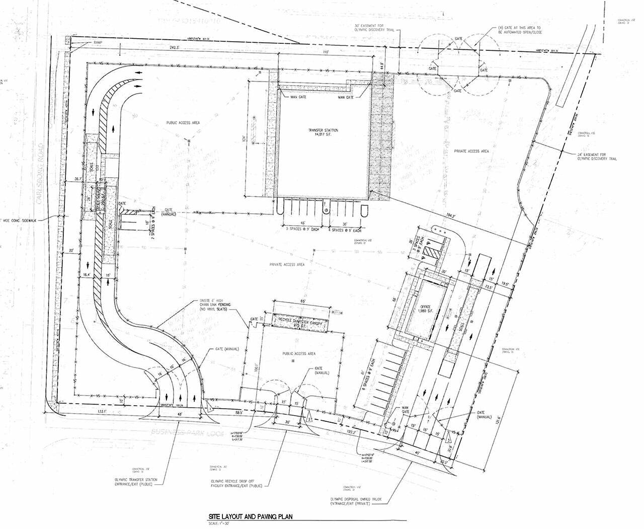
Olympic Disposal in mid-November filed a conditional use permit with Clallam County’s Department of Community Development to place a municipal solid waste transfer station, commercial recycling center and consolidation bay and offices on a currently vacant 5.46-acre site at the northeast corner of Carlsborg Road and the Carlsborg Business Loop.
Olympic Disposal representatives did not respond to request for comment on the proposal.
The Olympic Disposal Transfer Station itself will be approximately 14,000 square feet and 36 feet tall, with an 831-square-foot recycling center less than 20 feet tall. Also in the plans are a 2,000-square-foot office and a 260-square-foot pay booth. Surrounding the site will be an 8-foot-tall sight-obscuring fence along with landscape buffers.
According to representatives of Sitts & Hill, a Tacoma-based engineering firm, they say between 180-205 of the estimated 513 vehicles entering the facility each day — about 35-40 percent — will be heavy vehicles and/or trucks. Traffic estimates are based on traffic patters observed at the Grays Harbor Transfer Facility in Montesano, the representatives state.
The transfer station is expected to process about 120 tons per day as operations begin.
Mary Ellen Winborn, director of Clallam County’s Department of Community Development, said in an email that the county will be sending out a “notice of complete application” to the applicant in about a week.
“This does not mean that it is an approved permit, this only means that the applicant has completed all of the criteria to apply for a permit,” she wrote.
A public hearing regarding the proposal is slated for Feb. 3 or Feb. 17, she said, adding that a DCD staff report will be done and online a week before the hearing.
“We do not know at this time what our recommendation to the hearing examiner will be,” Winborn wrote.
Tarnsfer station details
The proposed transer station and recycling center would be open from 7 a.m.-7 p.m. daily, except holidays, for disposal of solid waste and recycling, company representatives stated.
The conditional use permit outlines a number of factors that will be considered in making the proposed transfer station compatible with neighboring properties, including sound levels and time-of-day sound impacts, objectionable odors, light and glare, aesthetic impacts from structures and objects on the property, as well as possible environmental impacts to the Airport Overlay District.
Sitts & Hill representatives say the proposed transfer station will have enough landscaping and buffering to have no aesthetic impacts to neighboring residences, possible objectionable odors will be controlled via orientation of buildings, and lighting will be shielded downward.
“We have not identified any adverse impacts that cannot be mitigated as a result of this project,” Sitts & Hill representatives noted in a document to Clallam County Principal Planner Donella Clark on Oct. 26.
The proposed transfer station is within the Dungeness Water Rule Area as well as the Sequim Valley Airport’s Overlay District, according to county maps.
“A potential increase in bird population, that could have an effect on the Sequim Valley Airport, Airport Overlay District, will be effectively mitigated through good housekeeping and operational techniques.”
Those include using “roll-up doors while the site is not in operation to prevent birds from scavenging, they said.
The plan includes a 20-foot landscape buffer along Carlsborg Road and 10-foot landscape buffers along Business Park Loop and the Olympic Discovery Trail.
Café rep dislikes plan
Carol Murphy, representing the nearby Old Mill Café, said the project is a poor location for a transfer station.
During the COVID pandemic, much of the restaurant’s customers are eating outside, Murphy noted Monday, something likely to be affected by the project.
“Can you imagine sitting outside, eating a meal, (with) the smell of garbage wafting across your palate?
“Then there’s the noise pollution, trucks roaring up and down the street, coming in and out. The actual noise going to be very destructive.”
Murphy also noted the increased traffic could block access to nearby businesses.
She said that the area is zoned for light industrial and for the most part — minus the occasional “skunky” smell from one business on the Carlsborg business loop — “they are very good neighbors.”
Murphy herself lives close the café, which is less than a quarter mile south of the proposed transfer station.
“This is not at all in alignment with a rural-residential neighborhood,” she said.
“It should be up in the hills somewhere; it should not be in the middle of a neighborhood.”
Public outcry and concern kept a proposal for a crematory from being built on the Business Park Loop in Carlsborg in 2008.
