City deems Westbay ‘technically incomplete’
Published 11:00 am Monday, July 28, 2025
Updated July 29: Story includes update from the July 28 Sequim City Council meeting.
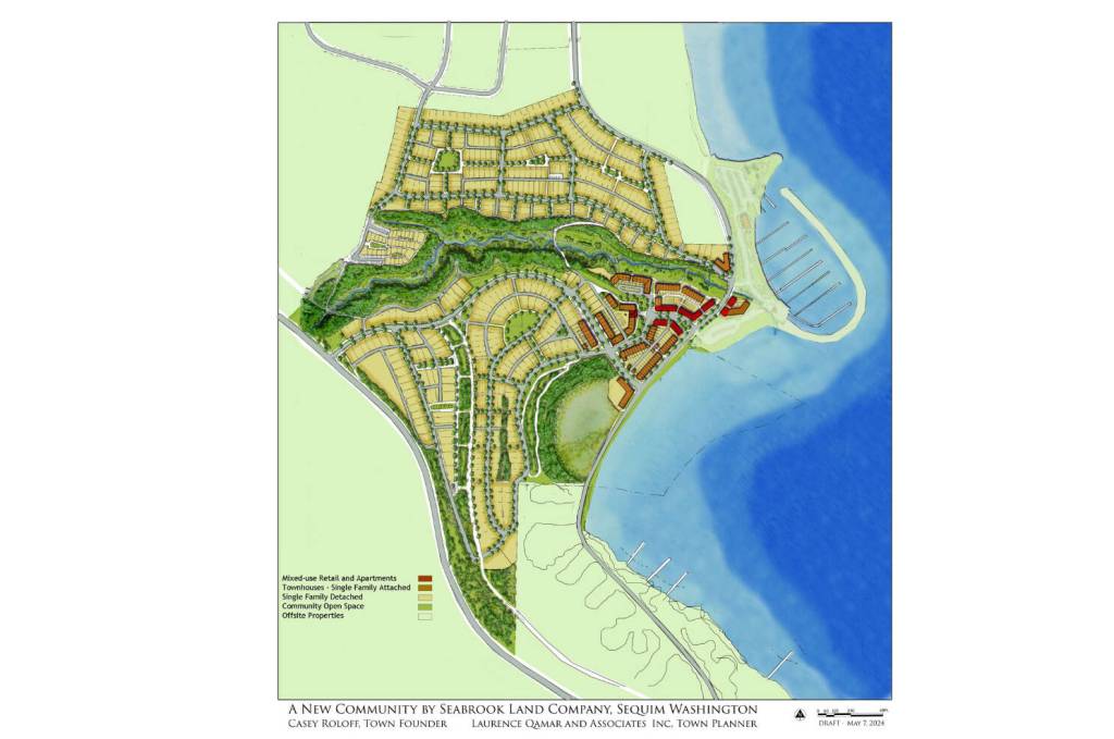
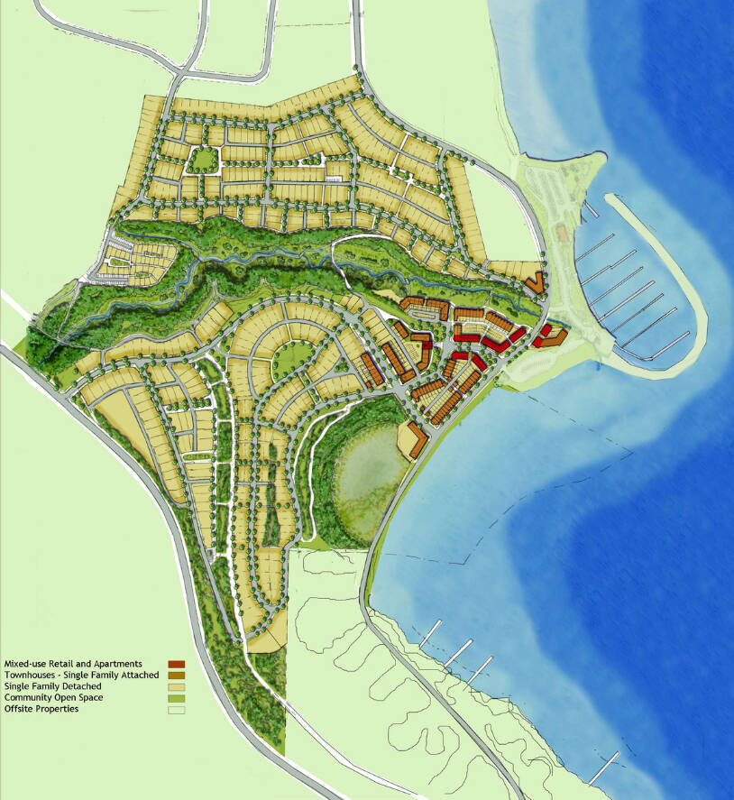
City of Sequim planners reported on July 21 that the application for Seabrook Holding Company’s “Westbay” 600-lot Master Plan application along West Sequim Bay Road is ruled “technically incomplete.”
In a July 21 letter to Seabrook staff, Sequim Senior Planner Travis Simmons shared seven pages of deficiencies identified by the City Community and Economic Development and Public Works Departments’ Staff.
According to the city’s website, technical completeness means city staff have 28 calendar days to make a determination (under RCW 36.70B.070) that the contents of the application is in accordance with city application requirements and contains sufficient detail and contents for the city to begin its substantive review of the application.
It is not an approval or complete substantive review of the application, the website states.
Westbay’s Master Plan and Overlay rezone were deemed “counter complete,” when all required documents were submitted on June 23, and the “technical complete” review process began.
However, city staff were set to propose at the July 28 city council meeting, after the Gazette’s press deadline, a six-month moratorium on accepting, processing, and approving applications for Master-Planned Overlays while the city’s 2025 Comprehensive Plan is being updated.
If approved, a public hearing would be scheduled within the next 60 calendar days.
In the agenda sheet, staff wrote that the completion of the plan is expected to be in June 2026 and that moratorium “will only be necessary while we and our consultants prepare the 2025 Comprehensive Plan update.”
“Master planned projects are larger scale and impact most other developments; because of this, staff believe that applicants and the public will benefit from having clear and consistent guidance that will be developed through this process,” staff write.
They continued, “in the meantime, staff believe that imposing a moratorium with immediate effect is necessary to promote the public good.”
Update: city councilors unanimously approved the moratorium on all Master-Planned Overlays for up to six months but no date has been set yet for the public hearing. A story will appear in the Aug. 6 Gazette about the council’s decision.
According to city documents, Westbay would develop about 90 acres of a 160-acre property to include up to 650 residential units over many years with up to 30,000 square feet of commercial, office and civic uses.
After the city’s “technically incomplete” determination, Jeff Gundersen CFO/COO for Seabrook Holding Company, wrote via email that they received the letter.
“We appreciate the city’s thorough and thoughtful review of our submission,” he wrote.
“We are carefully addressing the items outlined and are committed to delivering a complete and responsive application. Our team is actively working on the requested adjustments and looks forward to resubmitting in the coming weeks.
“Seabrook remains excited about the vision for Westbay and the opportunity to contribute to the future of the Sequim community.”
Reviews
In Simmons’ letter, he wrote that staff comments are not a full review, but identify the minimum necessary for the city to determine the application technically complete so a full technical review can continue.
From the Department of Community and Economic Development’s (DCED) review, staff reported multiple deficiencies in and missing documents and studies for the master plan.
They wrote that it’s not “a fully developed master planning document, sufficient in meeting its purpose to effectively communicate to the public, city officials and the review authority, the proposed project in appropriate detail.”
In the document of more than 500 pages, there are only four pages of narrative, staff wrote, and the technical components are not integrated into the plan’s narrative to help “(ensure) that a complete understanding of the project is described within the narrative itself (whereas) the submittal leaves it to the reader to try to determine the actual project scope, its impacts, and proposed mitigations.”
Staff also list quality control inconsistencies in the State Environmental Policy Act (SEPA) Checklist, project descriptions varying between documents, scale on civil drawings is incorrect, and various inaccuracies, such as incorrect street names and typos.
They also asked that critical areas and appropriate buffers be depicted consistently, and that the Critical Areas Report lists analysis and appropriate measures and mitigations that may be necessary for the shoreline.
Westbay’s developers will also need the city’s fire marshal to review civil drawings.
Staff also sought more clarity on the total number of units in the development as it states “up to 650 residential units” and “600 total lots and up to 300 multi-family units, with some in mixed use commercial, and single-family detached lots are expected between 250 and 550.”
Westbay’s reported 9.5 dwelling units per acre is incorrect in the document, staff wrote, and they requested the acreage/square footage breakdown of the entire site be consistent.
A parking impact study, a description of potential parking and pedestrian impacts, and appropriate measures to mitigate impacts are also required along with building architectural renderings and illustrations with the submitted design standards.
Staff requested a more detailed Phasing Plan and that each phase must have standalone infrastructure and not reliant on future phases.
The DCED staff wrote that the “analysis provided is insufficient to determine the advantages and positive benefits to the greater Sequim community.”
“While the response references areas within the Master Plan that will be open to the public, it does not specify what features are intended for public access, where they are located, or whether that is the only benefit provided to the broader Sequim community,” they wrote.
Public Works review
Sequim’s Public Works Department staff wrote in its review that the Preliminary Utility Reports were not submitted with the plan.
“Water is required to be connected from Washington Harbor Loop and extended as a dedicated main of a minimum 12-inch diameter to service the Westbay project,” staff wrote.
“Analysis is to be provided in the Preliminary Water Utility Report (and) due to the size and scope of the proposed development, analysis may be necessary to determine if additional infrastructure, such as booster station, looped line alternatives, or additional storage is needed.”
They stated that the proposed connection point is to a private water system that does not have the capacity to serve the development as proposed.
Westbay also needs a Preliminary Sewer Utility Report, and a Preliminary Stormwater Report.
The application’s Critical Areas Report will need to appropriately evaluate, address and mitigate a proposed sewer lift station by the Pitship Pocket Estuary too.
Staff wrote that the application’s Traffic Impact Analysis was insufficient for various reasons, including no traffic mitigation proposed, the Level of Service impacts conflict with the city’s numbers, and it must include West Sequim Bay Road and U.S. Highway 101’s Level of Service numbers.
With the roads assumed to be private streets, staff write that Whitefeather Way and West Sequim Bay Road are to be developed to the city’s Arterial Street standard and to remain public right of way with emergency vehicle turnarounds at dead ends and cul-de-sacs.
To read the city’s letter in full and see updates on the Westbay project, visit sequimwa.gov/1316/Westbay-Master-Plan-Application.
