Shipley Center readies construction permit
Published 3:30 am Wednesday, September 3, 2025
In two Christmases, supporters of Shipley Center, Sequim’s senior center, could have a new facility as a present for the community.
Michael Smith, the center’s executive director, said he hopes they’ll be moving into their planned refurbished space at 651 W. Washington St. by the end of 2026.
“We’re very optimistic, and getting more excited by the day as we approach getting the building permit,” he said.
The center’s board of directors agreed in June 2024 to purchase the former JCPenney building for $2.775 million in cash with escrow closing in early August 2024.
Demolition led by the center’s Project Foreman Duane Cobb recently finished, Smith said, and now the organization plans to submit a building permit and floor plan by mid-to-late September to the City of Sequim for approval.
The Shipley Center will serve as its own general contractor and hire the project’s subcontractors, Smith said.
Plans come close to tripling available space from the current 11,000 square feet center at 921 E. Hammond St. to 29,000 square feet.
“It’ll greatly increase what we can offer in quantity and quality inside,” Smith said in a July 11 WOW! Working on Wellness radio forum on KSQM with Dungeness Valley Health & Wellness Clinic.
He said going from 900 to 2,000 members in 20 years, “we just need more space,” and it will allow them to have upwards of 10 activities going at the same time.
Quick background
Shipley Center’s new building was built in 1981 as a Safeway, and later leased to JCPenney from 1994-2021.
At one point, center leaders looked to build on 5.8 acres of land on Washington Harbor Loop near the Simdars Road interchange but costs became prohibitive.
Plans then shifted to build a 6,500-square-foot annex across the street from the current building to include an exercise room, demonstration (commercial) kitchen, patio, administrative office, conference room, restrooms and storage space. But, again, the cost for construction became prohibitive and center leaders turned to purchasing and renovating an existing space.
Enter the purchase and renovation of the former JCPenney.
Inside and out
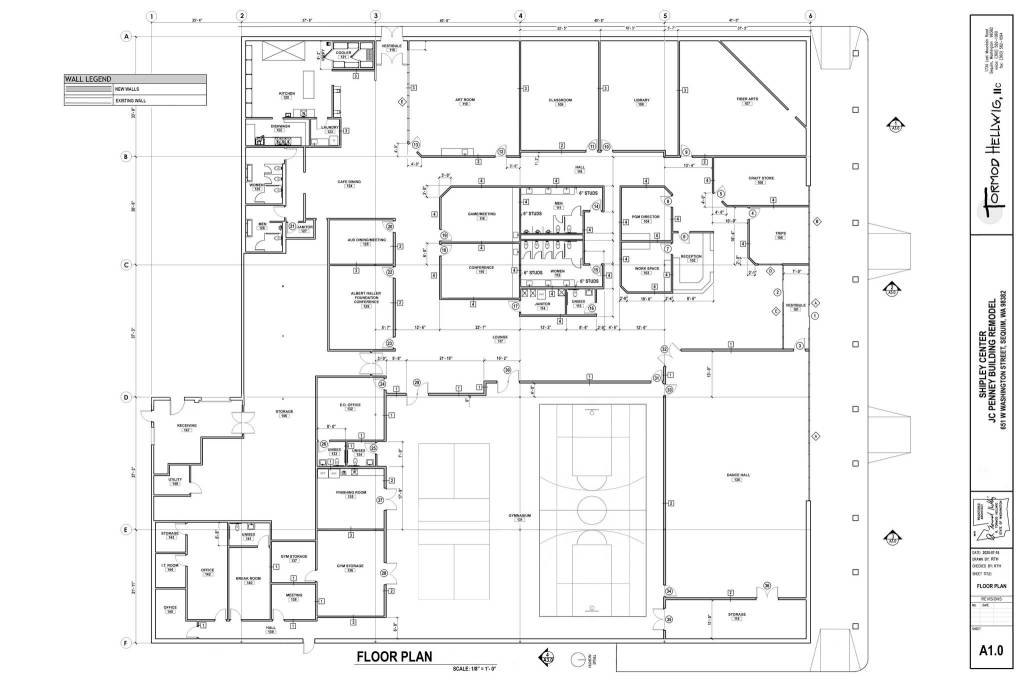
According to Smith, the current main entrance to the center will be moved to the west. Once inside, there will be a dance hall to the left for a range of classes for all abilities with an engineered floor.
Near the entrance is also a lobby with the reception area, information about excursions, and a craft store.
Smith said the top three things volunteers are asked about are membership services, programs, and trips, so those are all near each other at the front counter.
Moving along the east wall are two multi-use courts that can host basketball, pickleball, and volleyball year-round. Smith said with more space, they might be able to leave ping pong tables up all the time too.
By the reception desk and courts in the center of the building are bathrooms with five stalls each. There are also two card/games rooms planned. Existing restrooms that are in the back of the building will remain.
South of the courts are staff rooms and storage. Smith said other senior center directors told him that storage is essential. The building also has a lift that people of any ability level can use to transport goods to a second floor storage area.
In the former JCPenney Salon area in the building’s southeast corner will be Leo’s Cafe with a private dining area, public dining area, and a large commercial kitchen.
Smith said that once open, they’ll shift from a sit-and-order restaurant to customers placing an order first, then sitting down. The side door formerly used for the salon will remain available.
They’re also planning to insulate the laundry and dishwasher rooms to quiet the space, he said.
Along the west wall of the center will be an art room, classroom, library, fiber arts room, and the craft store. The library will reuse some shelving from the salon, Smith said, and host a few computers for center members to use.
Shipley Center currently offers computer classes and its new building will offer Wi-Fi throughout the building so the classes can be offered anywhere inside, Smith said.
During the radio forum, he said that changes outside the building will be minimal, aside from adding new paint, signage, and more handicap parking.
With the purchase of the building and lot, Shipley Center owns the ballot box island and space for Chaos Coffee. Smith said they’ve already updated parking lot lights to be LED.
Savings and support
In recent months, center leaders purchased a large amount of lights for 120 light fixtures to avoid paying potential increases imposed from tariffs. Through Clallam PUD rebates, they’ll have about one-third of the costs covered, Smith said.
For demolition, Cobb led senior volunteers who helped haul off about 20,000 square feet of carpet. Durashine Concrete Polishing was hired to remove about 4,000 square feet of tile.
To save money, center staff and volunteers have been recycling brass, copper and other metals. They even found a supporter who wanted 1,000 square feet of carpeting for weed control in her garden.
Smith said their total renovation budget is at about $2.5 million and they are putting together funds to move forward as soon as they receive the building permit.
Shipley Center members have been donating various amounts each month, he said, and some have been loaning the center funds for the center renovations with an agreement to be paid back once the building at 921 E. Hammond St. and its adjacent land for the annex are sold. The center also has the Washington Harbor Loop acreage for sale.
Smith said the center has no debt and continues to pay off its credit card monthly. The center was named after benefactor R. Leo Shipley who donated large sums of money and a mobile home park (Baywood Village) that the center manages.
For more about the Shipley Center, visit shipleycenter.org or call 360-683-6806.
For more information about donations, loans, and/or purchasing property, contact Michael Smith at msmith@shipleycenter.org.
Fast facts
• Shipley Center hosts an open house with the talent show Sequim’s Got Talent from 1-3 p.m. Friday, Sept. 26.
• Smith said private tours of the current and future space are available by calling the center at 360-683-6806 from 9 a.m.-4 p.m. Monday-Friday.
• Leo’s Cafe is now open, starting this week, from 9 a.m.-2 p.m. Monday-Thursday. It will cater social events on Fridays.
• Membership to the Shipley Center is open to all ages, but those under 50 cannot sit on the board or vote for board members.
• Anyone can participate in activities. However, members receive a 50% discount.
• Membership is $50 for one person, or $85 for any two people living at the same address.
