UPDATE: Public hearing for proposed Carlsborg transfer station delayed until November
Published 11:39 am Tuesday, July 19, 2022
Editor’s note: This story has been updated; a version that appears in the July 20 edition of the Sequim Gazette indicated the July 21 public hearing could be held, but it has been delayed/continued until November. — MD
Challengers and proponents of a proposed waste transfer station and recycling center in Carlsborg will not get a chance to voice their thoughts at a public hearing scheduled for July 21 — five-and-a-half months after the original hearing was scheduled.
On Tuesday, July 19, county officials agreed to postpone the public hearing before the Hearing Examiner until November; a specific date has not been announced.
In a 20-page report to the Hearings Examiner on Jan. 26, just prior to the originally scheduled Feb. 3 public hearing, Clallam County staff recommended that Olympic Disposal System’s Zoning Conditional Use Permit be denied.
Following a pre-conference hearing on Feb. 3, Clallam County senior planner Donella Clark said the public hearing would be continued on July 21. Representatives from Citizens for Carlsborg, the City of Port Angeles and Olympic Disposal/Waste Connections agreed to continue the public hearing based on the staff’s recommendations and a county environmental review, Clark said.
Following a discussion between Clark and representatives with Olympic Disposal in late June, however, legal representatives for the company asked the Hearing Examiner to continue the hearing once more, and to set a new hearing date for November.
“Olympic requires additional time to complete and submit the traffic study and landscaping plans and to provide them to DCD for review and consideration substantially in advance of the hearing,” the company noted in a motion to the Hearing Examiner on July 13.
A decision on the application will be made by the county Hearing Examiner within 10 working days after the record closes, county officials noted; any person may submit a written request to the Department of Community Development to receive a notice of the decision once it is made.
Contact Clark at 360-417-2594 or donella.clark@clallamcountywa.gov for more information or to comment.
View the proposal and corresponding documents at clallam.net/LandUse; click on “Hearing Examiner,” and then “Open Hearing Examiner Cases.”
The proposal has met with numerous objections from community members, business leaders — including the Citizens For Carlsborg Group (see carlsborg.org) — and, in a letter to the county hearings examiner in June, from the Clallam County Economic Development Council.
“The transfer station proposed in the application is inconsistent with the CCSWMP [Clallam County Solid Waste Management Plan], would generate an immense amount of traffic not viable for the location, would create a safety hazard for Greywolf Elementary School, and is not supported by hundreds of members of the public,” EDC representatives wrote on June 10. “The application should be denied.”
County staff wrote in their recommendation, “Numerous nuisances, such as odor, noise, traffic, and even an aesthetic impact have been identified that will be created by this proposal.
“The proposal does not align with the vision of the Carlsborg Industrial zone located within the Carlsborg UGA, where the allowed uses are intended to be low nuisance, low intensity industrial uses.”
About the project
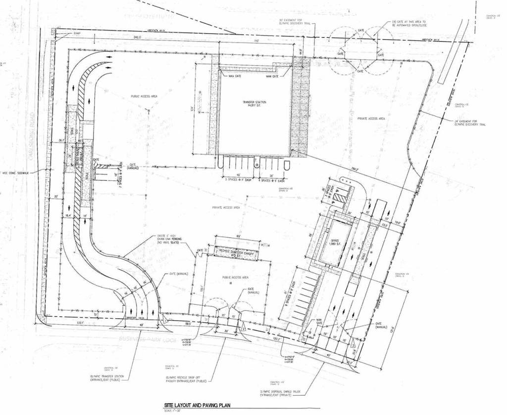
In mid-November, Olympic Disposal filed a conditional use permit with Clallam County’s Department of Community Development to place a municipal solid waste transfer station, commercial recycling center and consolidation bay and offices on a currently vacant 5.46-acre site at the northeast corner of Carlsborg Road and the Carlsborg Business Loop.
The proposed Olympic Disposal Transfer Station would be about 14,000 square feet and 36 feet tall, with an 831-square-foot recycling center less than 20 feet tall. Also in the plans are a 2,000-square-foot office and a 260-square-foot pay booth. Surrounding the site will be an 8-foot-tall sight-obscuring fence along with landscape buffers.
According to representatives of Sitts & Hill, a Tacoma-based engineering firm, about 180-205 of the estimated 513 vehicles entering the facility each day will be heavy vehicles and/or trucks. Those traffic estimates are based on traffic patterns observed at the Grays Harbor Transfer Facility in Montesano, the representatives state.
The transfer station would process about 120 tons per day as operations begin. The proposed transfer station and recycling center would be open from 7 a.m.- 7 p.m. daily, except holidays, for disposal of solid waste and recycling, company representatives stated.
Staff concerns
County staff said the proposal failed to meet four separate conditions of the conditional use permit as well as mitigating concerns addressed through the State Environmental Policy Act.
“The County would request an analysis of both need and location be received from the applicant concerning options for Waste Connections to operate a transfer station on the east end of the County,” staff wrote.
“The applicant should review the Clallam County Solid Waste Management Plan and work with the Clallam County Solid Waste Advisory Committee to determine a more appropriate location if a need is determined.”
Staff also noted in the report a significant number of citizens opposed to the proposed facility.
“Community members have voiced their concerns, and though not a determining factor for projects, indicates both an understanding and investment in the vision of Carlsborg and what is reflected in the Comprehensive Plan,” staff wrote.
