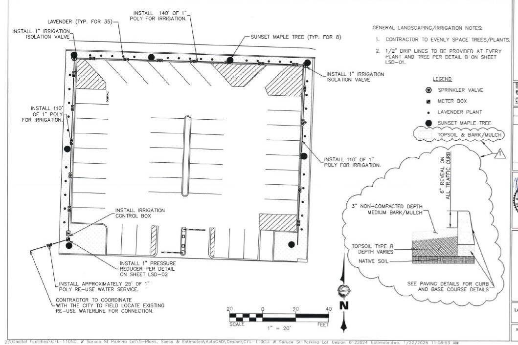
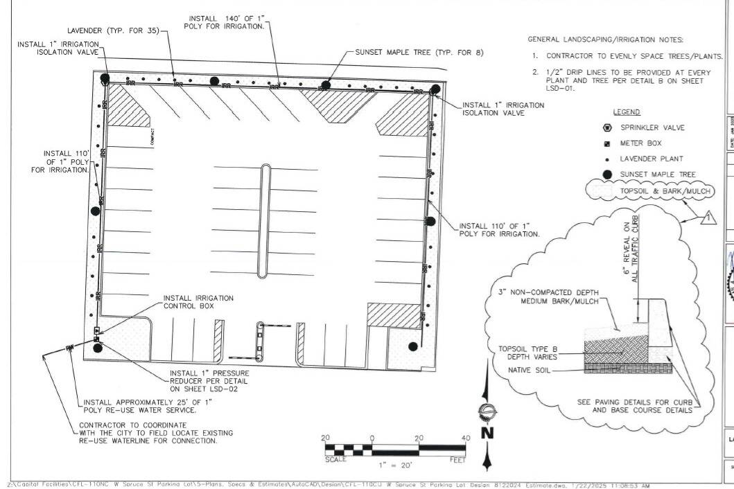
Properties formerly linked to consistent 911 calls for drugs, violence and various forms of abuse on West Spruce Street are slated to become a new parking lot next to the Sequim Civic Center, 152 W. Cedar St.
Hoch Construction of Port Angeles, who is leading work on the renovation and expansion of the nearby Sequim Library slated to open in late spring, won an approximate $619,000 contract to level the lots and create a gated parking lot with 40 spots north of the city hall. It will include four pay-to-use electric vehicle charging spots, too.
City councilors agreed to the contract, which includes a 10% contingency fund, at their Feb. 24 regular meeting in its consent agenda.
Work will tentatively begin at the end of March or in early April and finish in July or August under a 60-day working contract, said Nick Dostie, Sequim city engineer/deputy director of Public Works.
City employees will use the parking lot on weekdays, and it will be open to the public on weekends, he said.
Hoch was the lowest of 10 bidders, and city staff estimated the project to cost about $692,000.
The project was delayed from 2024, with $400,000 rolled over from 2024’s General Facility Charges and General Fund, and added to funds from this year’s Real Estate Excise Tax, General Fund, and water and sewer funds.
Properties’ history
The city purchased the three lots, 153, 161 and 169 W. Spruce St., in June 2022 for $457,500 with its Rainy Day Funds to turn the properties into a parking lot.
City staff negotiated the sale with former owner Ron Fairclough’s living trust, his brother-in-law and sister Samuel and Yvonne Pedersen, and real estate broker Kalo Vass with Keller Williams Olympic.
The three lots were listed originally for $750,000, but their price was lowered a few times earlier that year.
For more than a decade, Fairclough previously said he had been in and out of negotiations with the city to purchase his properties but they couldn’t come to an agreement, including at one point to lease lots for parking.
Fairclough said he bought the first property, 153 W. Spruce St., in 1974, and then 161 in 1980, and 169 in 2007 with the intent to create a Sequim Laboratory of Dental Arts.
But Fairclough said bad renters and theft prevented him from moving forward with the facility.
Sequim Police officers were often called to the properties, with more than 140 calls from 2010-2014 for issues such as animal abuse, domestic violence, assault, child abuse, drug violations and more, with multiple people investigated and/or charged with multiple crimes.
In June 2018, city crews demolished a house at 169 W. Spruce St. that was deemed condemned.
Fairclough agreed to have the home demolished as part of the Sequim Service Fest event.
Organizers said remains of the home and garbage from the property and neighboring lots 153 and 161 W. Spruce St. filled 12 truckloads to the dump. In 2017, Fairclough had a home at 161 W. Spruce St. demolished.
His home at 153 W. Spruce St. burned down in June 2021, along with a dental lab, garage and a fifth wheel trailer. Firefighters could not determine its official cause, and no criminal charges were filed. City crews removed burned debris in December 2021.

